首页
welcome赢乐介绍
新闻中心
welcome赢乐概况
服务理念
售后服务
联系我们
产品中心
jtgk.png

产品中心

Z641H不锈钢气动闸阀

您的位置:阀门 - 闸阀 - Z641H不锈钢气动闸阀 更新时间:2026-01-12 02:01:27
Z641H不锈钢气动闸阀
    • 质量安全:压力、材质、密封等全方位检测确保质量过关!
    • 价格比较:在相同品质的情况下,厂里直销,更具有优势!
    • 交货快捷:常规产品现货供应,生产加工销售一条龙服务!
      上海凯利科阀门致力于高品质阀门的设计、研发、生产销售服务于一体的大型阀门企业,科技创新,永不止步,与您携手共创辉煌...

    • 产品描述
    • 在线询价
    • 技术咨询
    Z641H不锈钢气动闸阀Z641H不锈钢气动闸阀

    Z641H不锈钢气动闸阀广泛适用于石油、化工、水力、火力发电厂等油品、水蒸气管路上作接通或截断管路中介质的启闭装置。适用于公称压力PN1.6~16.0MPa,工作温度≤-29℃~550℃的管路系统上,作为切断或接通管路介质。适用介质为:水、油品、蒸气、及酸、碱、氨、尿素、含硫天然气等。

    产品名称: 不锈钢气动闸阀 产品型号: Z641H
    公称通径: DN15~DN1000 结构形式: 闸板式
    公称压力: 1.6Mpa~6.4Mpa 连接方式: 法兰
    适用温度: -20ºC~+150ºC~425ºC~550ºC 驱动方式: 气动带手动
    阀体材质: WCB、铸钢、碳钢、不锈钢、铬钼钢 制造标准: 国标GB、德国DIN、美国API、ANSI
    适用介质: 水、油、蒸汽 生产厂家: welcome赢乐

    产品说明

    Z641H不锈钢气动闸阀广泛适用于石油、化工、水力、火力发电厂等油品、水蒸气管路上作接通或截断管路中介质的启闭装置。适用于公称压力PN1.6~16.0MPa,工作温度≤-29℃~550℃的管路系统上,作为切断或接通管路介质。适用介质为:水、油品、蒸气、及酸、碱、氨、尿素、含硫天然气等。

    产品特点

    1、结构紧凑、设计合理、阀门刚性好、通道流畅,流量系数小
    2、密封面采用不锈钢和硬质合金,使用寿命长
    3、采用柔性石墨填料、密封可靠,操作轻便灵活
    4、驱动方式为手动、气动、电动、齿轮传动
    5、结构形式为弹性楔式单闸板、刚性楔式单闸板双闸板型式

    产品介绍

    Z641H不锈钢气动闸阀是具有气动执行机构(双层气缸,并带有缓冲机构)和手动及其保护机构(手动和可自锁的气动-手动转换装置)的低支架明杆气动闸阀。该阀由于采用双层气缸结构,其与单气缸式气动闸阀相比,提升力增大了一倍。这就从根本上解决了单气缸气动闸阀的某些阀体内楔死而打不开的弊病。而且,由于气动闸阀具备缓冲机构,能有效地减速轻了关闭气动阀门时,由于活塞下行冲击而造成的阀板车密封面和阀体密封面的磨损,同时,也能避免闸板卡死的现象。为了配合用户实现操作自动化,本公司除供应本系列产品之外,还可单独提供包括支架在内的气缸体,帮助用户对已有的种类繁多的手动闸阀进行改造,将双缸气动执行机构部分安装在手动闸阀的阀体大盖上,即可构成双缸式气动-手动两用闸阀。由于其技术先进,性能可靠,操作切换和维修方便,已被石油、化工、冶金、电力、海运等部门作为输送气体、液体介质的管道开闭装置而广泛使用。

    主要零件材料

    阀体、阀盖、阀板 铸钢、不锈钢
    阀体及闸板的密封面 合金钢
    阀杆 不锈钢
    双头螺栓 35号钢
    气缸 20号无缝钢管
    活塞 铸铝合金
    手动螺母 青铜
    密封圈 石棉橡胶板、缠绕式金属石墨垫片
    活塞环及轴环 耐油橡胶○型圈
    填料函 石墨石棉绳

    主要性能参数

    型号 公称压力PN(MPa) 阀体试验压力 PN(MPa)  
     
    强度试验 密封试验  
    Z641H-10 1.6 2.4 1.6  
    Z641H-25 2.5 3.8 2.5  
    Z641H-40 4.0 6.0 4.0  
    Z641H-64 6.4 9.6 6.4  

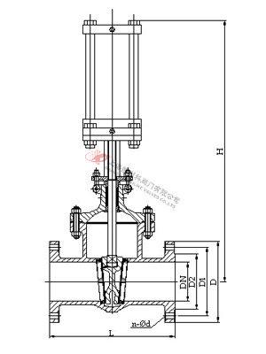
    外形结构图

    主要外形和连接尺寸

    公称通径  DN L D D1 D2 b Z-Φd H H1 D0 WT(Kg)
    型号:Z641H-16C、Z641H-16P、Z641H-16R、Z641H-16I
    50 250 160 125 100 16 4-Φ18 950 570 180 36
    65 270 180 145 120 18 4-Φ18 1050 596 180 53
    80 280 195 160 135 20 8-Φ18 1080 635 200 72
    100 300 215 180 155 20 8-Φ18 1145 645 250 90
    125 325 245 210 185 22 8-Φ18 1210 685 250 120
    150 350 280 240 210 24 8-Φ18 1300 720 320 132
    200 400 335 295 265 26 12-Φ23 1660 940 400 258
    250 450 405 355 320 30 12-Φ25 1790 1020 400 297
    300 500 460 410 375 30 12-Φ25 1990 1150 450 420
    350 550 520 470 435 34 16-Φ25 2090 1170 450 558
    400 600 580 525 485 36 16-Φ30 2290 1325 500 840
    450 650 640 585 545 40 20-Φ30 2485 1465 500 1110
    500 700 705 650 608 44 20-Φ34 2640 1590 550 1380
    600 800 840 770 718 48 20-Φ41 2940 1720 550 1620
    700 900 910 840 788 50 24-Φ41 3450 1960 600 1966
    800 1000 1020 950 898 52 24-Φ41 3650 2190 600 2282
    900 1100 1120 1050 998 54 28-Φ41 3815 2400 800 2495
    1000 1200 1255 1170 1110 56 28-Φ48 4000 2650 800 2760

    主要外形和连接尺寸

    公称通径
    DN
    L D D1 D2 b Z-Φd H H1 D0 WT
    (Kg)
    型号:Z641H-25C、Z641H-25P、Z641H-25R、Z641H-25I
    50 250 160 125 100 20 4-Φ18 950 570 180 38
    65 270 180 145 120 22 8-Φ18 1050 596 180 55
    80 280 195 160 135 22 8-Φ18 1080 635 200 76
    100 300 230 190 160 24 8-Φ23 1145 645 250 94
    125 325 270 220 188 28 8-Φ25 1210 685 250 126
    150 350 300 250 218 30 8-Φ25 1300 720 320 136
    200 400 360 320 278 34 12-Φ25 1660 940 400 265
    250 450 425 370 332 36 12-Φ30 1790 1020 400 300
    300 500 485 430 390 50 16-Φ30 1990 1150 450 436
    350 550 550 490 448 44 16-Φ34 2090 1170 450 580
    400 600 610 550 505 48 16-Φ34 2290 1325 500 860
    450 650 660 600 555 50 20-Φ34 2485 1465 500 1260
    500 700 730 660 610 52 20-Φ41 2640 1590 550 1420
    600 800 840 770 718 56 20-Φ41 3940 1720 550 1710
    700 900 955 875 815 60 24-Φ48 3450 1960 600 2105
    800 1000 1070 990 930 64 24-Φ48 3650 2190 600 2310
    900 1100 1180 1090 1025 66 28-Φ54 3815 2400 800 2620
    1000 1200 1305 1210 1140 68 28-Φ58 4000 2650 800 2960

    主要外形和连接尺寸

    公称通径
    DN
    L D D1 D2 D6 b Z-Φd H H1 D0 WT
    (Kg)
    型号:Z641H-40C、Z641H-40P、Z641H-40R、Z641H-40I
    50 250 160 125 100 88 20 4-Φ18 950 570 200 42
    65 280 180 145 120 110 22 8-Φ18 1050 596 200 68
    80 320 195 160 135 121 22 8-Φ18 1080 635 250 84
    100 350 230 190 160 150 24 8-Φ23 1145 645 320 102
    125 400 270 220 188 176 28 8-Φ25 1210 700 320 135
    150 450 300 250 218 204 30 8-Φ25 1330 750 400 156
    200 550 375 320 282 260 38 12-Φ30 1660 940 400 276
    250 650 445 385 345 313 42 12-Φ34 1820 1050 450 306
    300 750 510 450 408 364 46 16-Φ34 1990 1150 450 510
    350 850 570 510 465 422 52 16-Φ34 2110 1190 500 720
    400 950 655 585 535 474 58 16-Φ41 2335 1370 550 1050
    450 1050 680 610 560 524 60 20-Φ41 2490 1510 550 1320
    500 1150 755 6720 612 576 62 20-Φ48 2640 1590 550 1800
    600 1350 890 795 730 678 62 20-Φ54 2940 1720 600 2160

    使用说明

    1、本阀主要由阀体、阀盖、闸板、阀杆、密封圈、双层气缸及其活塞、活塞杆、隔板连同缓冲机构、手动机构、气动-手动转换装置和阀盖填料装置等部分组成。
    2、上活塞行至行程上端可顶上上回讯器,使之发讯;下活塞行之行程下端可顶下下回讯器,使之发讯,以作为闸阀开闭信息在中央操作室的模拟仪表盘上进行显示。
    3、手轮上部的外伸指示杆的上升和下降,标志着该阀的闸板是处于提升状态还是下降状态。闸阀关闭时,外伸指示杆位于最低位置;反之,闸阀全开时,外伸指示杆位于最高位置。此即为本阀启闭状态的现场指示。
    4、气缸盖上部装有气动-手动转换装置。将转换手柄顺时针方向提转到“气动”定位孔定位,闸阀处于气动操作状态;反之,将转换手柄逆时针方向提转到“手动”定于孔处定位,闸阀即可进行手动操作。带锥齿轮的手柄转换方向相反。 手动操作闸阀时,手轮旋向和普通手动阀一样,即顺时针转为关,逆时针转为开。带锥齿轮转动的相反。

    注意事项

    1、手轮、手柄及传动机构均不允许作起吊用,并严禁碰撞。
    2、双闸板闸阀应垂直安装(即阀杆处于垂直位置 , 手轮在顶部 )。
    3、带有旁通阀的闸阀在开启前应先打开旁通阀(以平衡进出口的压差及减小开启力 )。
    4、带传动机构的闸阀,按产品使用说明书的规定安装。
    5、如果阀门经常开关使用 , 每月至少润滑一次。
     

    声明:【Z641H不锈钢气动闸阀】规格型号、结构尺寸由welcome赢乐提供,如何选择适用的Z641H不锈钢气动闸阀产品,使之在工艺控制中安全可靠、经济适用,可致电我司销售部门及技术部门,我们将在最短的时间内为您解答!

    上一篇:Z641H气动闸阀 下一篇:Z41F46衬氟闸阀

    

    Copyright ©2011-2023 welcome赢乐,版权所有。 沪ICP备11046016号-29 网站地图

    销售电话:021-31001158

    手机号码:13816746668 陈国辉/经理

    电子邮件:klkvalves@126.com@126.com

    主营产品:球阀,闸阀,蝶阀,截止阀,止回阀,调节阀

    本周热门:不锈钢阻火器全天候呼吸阀气动球阀气动蝶阀气动刀闸阀气动调节阀电动球阀电动蝶阀电动刀闸阀电动调节阀不锈钢球阀不锈钢闸阀不锈钢截止阀不锈钢止回阀不锈钢电磁阀高压电磁阀高压球阀波纹管截止阀

    官方网址:www.fm058.com