首页
welcome赢乐介绍
新闻中心
welcome赢乐概况
服务理念
售后服务
联系我们
产品中心
jtgk.png

产品中心

Q41F铸钢球阀

您的位置:阀门 - 球阀 - Q41F铸钢球阀 更新时间:2026-01-12 02:01:05
Q41F铸钢球阀
    • 质量安全:压力、材质、密封等全方位检测确保质量过关!
    • 价格比较:在相同品质的情况下,厂里直销,更具有优势!
    • 交货快捷:常规产品现货供应,生产加工销售一条龙服务!
      上海凯利科阀门致力于高品质阀门的设计、研发、生产销售服务于一体的大型阀门企业,科技创新,永不止步,与您携手共创辉煌...

    • 产品描述
    • 在线询价
    • 技术咨询
    Q41F铸钢球阀Q41F铸钢球阀

    Q41F铸钢球阀主要用于截断或接通介质,也可用于流体的调节与控制。与其它阀类相比,球阀具优点1、流体阻力小,球阀是所有阀类中流体阻力最小的一种,即使是缩径球阀,其流体阻力也相当小。

    产品名称: 铸钢球阀 产品型号: Q41F
    公称通径: DN15~DN800 结构形式: 球形
    公称压力: 1.6Mpa~32.0Mpa 连接方式: 法兰
    适用温度: ≤550ºC 驱动方式: 手动
    阀体材质: 铸钢、碳钢、WCB 制造标准: 国标GB、德国DIN、美国API、ANSI
    适用介质: 水、油、气体、液体 生产厂家: welcome赢乐

    应用特点

    Q41F铸钢球阀主要用于截断或接通介质,也可用于流体的调节与控制。与其它阀类相比,球阀具优点
    1、流体阻力小,球阀是所有阀类中流体阻力最小的一种,即使是缩径球阀,其流体阻力也相当小。
    2、开关迅速、方便,只要阀杆转动90°,球阀就完成了全开或全关动作,很容易实现快速启闭。
    3、密封性能好。球阀阀座密封圈一般采用聚四氟乙烯等弹性材料制造,易于保证密封,而且球阀的密封力随着介质压力的增加而增大。
    4、阀杆密封可靠。球阀启闭时阀杆只作旋转运动,因此阀杆的填料密封不易被破坏,而且阀杆倒密封的密封力随着介质压力的增加而增大。
    5、球阀的启闭只做90°转动,故容易实现自动化控制和远距离控制,球阀可配置气动装置、电动装置、液动装置、气液联动装置或电液联动装置。
    6、球阀通道平整光滑,不易沉积介质,可以进行管线通球。

    主要性能规范 Capability Criterion

    设计与制造 结构长度 法兰尺寸 压力-温度 试验-检验
    GB122237 GB12221 GB9113 JB79 GB9131 GB/T13927 JB/T9092
    压力试验 Pressure Test
    公称压力NominalPressure 1.6 2.5 4.0
    强度试验
    Shell Test
    2.4 3.8 6.0
    水密封试验
    Water Seal Test
    1.8 2.8 4.4
    气密封试验
    Air Seal Test
    0.4-0.7

    主要零件材料 Materials Of main Parts

    阀体
    Body
    WCB ZG1Cr18Ni9Ti CF8 CF3 ZG1Cr18Ni12Mo2Ti CF8M CF3M
    球体阀杆
    Ball Stem
    304 1Cr18Ni9Ti 304 304L 1Cr18Ni12Mo2Ti 316 316L
    阀座
    Seat
    聚四氟乙烯PTFE 加坡纤增强聚四氟乙烯PTFE+Glass 对位聚笨PPL
    垫片
    Shim
    聚四氟乙烯PTFE 不锈钢/柔性石墨Stainless Steel/flexible Graphite 齿形垫片Tooth Profile Gasket
    阀杆座
    Stem Seat
    聚四氟乙烯PTFE 不锈钢/柔性石墨 Stainless Steel/Flexible Graphite
    填料
    Packing
    聚四氟乙烯PTFE 增强柔性石墨 Enhanced Flexible Graphite
    填料压盖
    Gland
      1Cr18Ni9Ti 304 304L 1Cr18Ni12Mo2Ti 316 316L
    温度
    Temperature
    -29℃~150℃(聚四氟乙烯 PTFE) -29℃~200℃(加玻纤增强聚四氟乙烯 PTFE+GLASS)
    -29℃~300℃(对位聚笨 PPL)
    -29℃~550℃(金属硬密封)
    介质
    Medium
    水蒸汽油品
    Water steam
    Oil goods
    硝酸类 Nitric Acid 强氧化介质
    strongey oxidable medium
    醋酸类 Acetic Acid 尿素类Urea

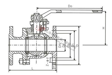
    外形结构图

    主要外型尺寸 Main outer Size

    1.6MPa DN L D D1 D2 b n-φd H D0
    凸面法兰
    RF
    Q41F-16C
    Q41PPL
    16C
    16P
    16R
    15 130 95 65 45 14 4-14 78 140
    20 140 105 75 55 14 4-14 84 160
    25 150 115 85 65 14 4-14 95 180
    32 165 135 100 78 16 4-18 150 250
    40 180 145 110 85 16 4-18 150 300
    50 200 160 125 100 18 4-18 170 350
    65 220 180 145 120 20 4-18 195 350
    80 250 195 160 135 20 8-18 215 400
    100 280 215 180 155 20 8-18 250 500
    125 320 245 210 185 22 8-18 265 600
    150 360 280 240 210 24 8-23 270 800
    200 400 335 295 265 26 12-23 330 1200
    2.5MPa 15 130 95 65 45 16 4-14 103 140
    凸面法兰
    RF
    Q41F-25C
    Q41PPL
    25C
    25P
    25R
    20 140 105 75 55 16 4-14 112 160
    25 150 115 85 65 16 4-14 123 180
    32 165 135 100 78 18 4-18 150 250
    40 180 145 110 85 18 4-18 156 300
    50 200 160 125 100 20 8-18 172 350
    65 220 180 145 120 22 8-18 197 350
    80 250 195 160 135 22 8-23 222 400
    100 280 230 190 160 24 8-23 253 500
    125 320 270 220 188 28 8-25 275 600
    150 360 300 250 218 30 8-25 286 800
    200 400 360 310 278 34 12-25 340 1200

    规格主要尺寸 Size Main Dimensions

    4.0MPa DN L D D1 D2 D6 b n-φd H D0
    凹凸法兰
    MFM
    Q41F-40C
    Q41PPL
    40C
    40P
    40R
    15 130 95 65 45 40 16 4-14 103 140
    20 140 105 75 55 51 16 4-14 112 160
    25 150 115 85 65 58 16 4-14 123 160
    32 180 135 100 78 66 18 4-18 150 250
    40 200 145 110 85 76 18 4-18 156 250
    50 220 160 125 100 88 20 4-18 172 350
    65 250 180 145 120 110 22 8-18 197 350
    80 280 195 160 135 121 22 8-18 222 450
    100 320 230 190 160 150 24 8-23 253 450
    125 400 270 220 188 176 28 8-25 275 600
    150 400 300 250 218 204 30 8-25 286 800
    200 550 375 320 282 260 38 12-30 340 1200
    6.4MPa 15 165 105 75 55 40 18 4-14 105 140
    凹凸法兰
    MFM
    Q41F-64C
    Q41PPL
    64
    64P
    64R
    20 190 125 90 68 51 20 4-18 125 160
    25 216 135 100 78 58 22 4-18 135 250
    32 229 150 110 82 66 24 4-23 150 350
    40 241 165 125 95 76 24 4-23 165 350
    50 292 175 135 105 88 26 4-23 175 450
    65 330 200 160 130 110 28 8-23 200 450
    80 356 210 170 140 121 30 8-23 210 600
    100 432 250 200 168 150 32 8-25 250 700
    125 508 295 240 202 176 36 8-30 295 1100
    150 559 340 280 240 204 38 8-34 340 1500
     

    声明:【Q41F铸钢球阀】规格型号、结构尺寸由welcome赢乐提供,如何选择适用的Q41F铸钢球阀产品,使之在工艺控制中安全可靠、经济适用,可致电我司销售部门及技术部门,我们将在最短的时间内为您解答!

    

    Copyright ©2011-2023 welcome赢乐,版权所有。 沪ICP备11046016号-29 网站地图

    销售电话:021-31001158

    手机号码:13816746668 陈国辉/经理

    电子邮件:klkvalves@126.com@126.com

    主营产品:球阀,闸阀,蝶阀,截止阀,止回阀,调节阀

    本周热门:不锈钢阻火器全天候呼吸阀气动球阀气动蝶阀气动刀闸阀气动调节阀电动球阀电动蝶阀电动刀闸阀电动调节阀不锈钢球阀不锈钢闸阀不锈钢截止阀不锈钢止回阀不锈钢电磁阀高压电磁阀高压球阀波纹管截止阀

    官方网址:www.fm058.com